4.5 pièces à Monthey avec Balcon-Terrasse et Vue Montagnes CHF 678'720.-
Situé sur une magnifique parcelle, avec une vue imprenable sur les montagnes, à seulement 10 minutes à pied du centre-ville, cet immeuble est composé de 11 appartements.
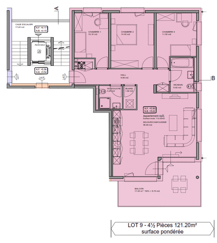
Judicieusement disposé au 2ème étage ce 4,5 pièces bénéficiant d'une pièce à vivre d'env. 36 m2 se compose comme suit :
- Un hall d'entrée
- Une cuisine ouverte sur le séjour donnant accès au balcon-terrasse
- Une colonne de lavage indépendante
- Une salle de bains/WC
- Une salle de douche/WC
- Une chambre d'env. 14,4 m2
- Une chambre d'env. 11,5 m2
- Une chambre d'env. 10,1 m2
- Une cave complète ce bel ensemble
Terrasse-Balcon : env. 17,4 m2
Surface brute : env. 112,5 m2
Surface pondérée : env. 121,2 m2
Place de parc intérieure : CHF 30'000.- en sus.
Livraison automne 2023 !




